The Janice on Sunset community is located in the Mill Creek area of Snohomish County. Consisting of mostly rambler style homes priced from the mid $300's, these quality built Reykdal Homes provide superior custom touches on large lots. When complete, this will be an exceptional neighborhood of 17 beautiful homes. We make customizing your new home easy! Visit our new 11 lot community near Silver Lake for more rambler choices.
Lot | MLS | Lot Size | Features | Current Price | Completion | Floor Plans, Renderings |
1 | 7,190 asf | 2-story w/ Master On Main | SOLD | Complete | 2160 main & upper | |
2 | 7,338 asf | Rambler 3bd, 2ba, Den, Greatroom | SOLD | Complete | 1977 | |
3 | 7,643 asf | 2-Story 3bd, 2.5bth, Greatroom, Den | SOLD | Complete | 2475 | |
4 | 9,513 asf | 2-Story 4bd, 3bth, Greatroom | SOLD | Occupied | 2454 | |
5 | 6,699 asf | SOLD | ||||
6 | 8,792 asf | SOLD | ||||
7 | 8,383 asf | SOLD | ||||
8 | 573618 | 7,152 asf | Rambler 3bd, 2bth, 3-Car | SOLD | 2148 | |
9 | 8,838 asf | SOLD | ||||
10 | 571994 | 14,073 asf | Rambler 3bd, 2bth, Den, 3-Car | SOLD | 2047 | |
11 | 7,820 asf | SOLD | ||||
12 | 7,104 asf | SOLD | ||||
13 | 9,236 asf | Adult Family Home, 7 bd, 6.5 bth | SOLD | Complete | Custom | |
14 | 7,957 asf | Custom Rambler | SOLD | Occupied | 1850 | |
15 | 7,452 asf | SOLD | ||||
16 | 6,943 asf | SOLD | ||||
17 | 487883 | 9,677 asf | Rambler 3bd, 2ba, Den | SOLD | 1977 |
Plan | Features | Floor Plans, Renderings (click to view) | Size (approx.) |
1482 | Rambler, 3 bd, 2 ba | main, Printable PDF | 1,482 sqft |
1630 | Rambler, 3 bd, 2 ba, den | main, Printable PDF | 1,630 sqft |
1850 | Rambler, 4 bd. 2 ba, den | main, Printable PDF | 1850 sqft |
1977 | Rambler 3bd, 2 ba, Den, Greatroom | Printable PDF | 1,977 sqft |
1996 | 2-story, 3 bd, 3 ba, den & bonus | Rendering 1, Rendering 2, Main, Upper, Printable PDF | 1,996 sqft |
2160 | 2-story, 3 bd, 2.5 ba, den | Main & Upper, Printable PDF | 2,160 sqft |
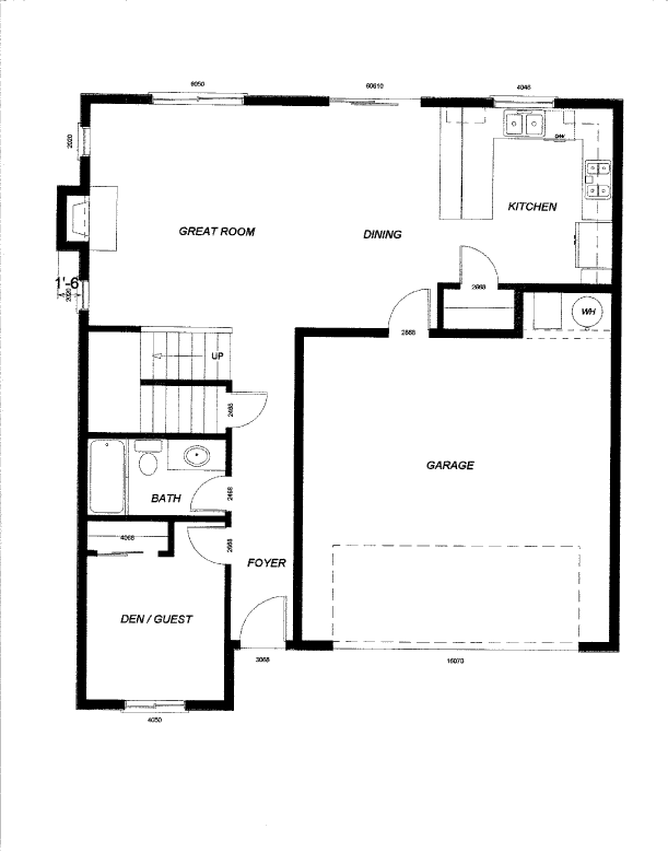
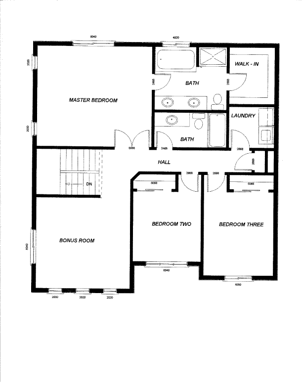
2454 | 2-Story, 4bd, 3bth, Optional Bonus | 2454, Main, Upper | 2,454 sqft |
2475 | 2-story, 3 bd, 2.5 ba, greatroom, den | Printable PDF | 2,475 sqft |
Prices, floor plans, square footages and all specifications may be changed without notice. Lot/Floor Plan Placement: For the continuity of the neighborhood, builder will make final determination on lot/floor plan at time of reservation/offer. Plat map is an artist interpretation only. Lot sizes and locations not guaranteed.